Einfamilienhaus Asternweg - Neubau



Ort: Gartenstadt, Rostock

Bauherr: privat

Leistungsphase: 1 - 9 HOAI

Baujahr: 2005

Beschreibung

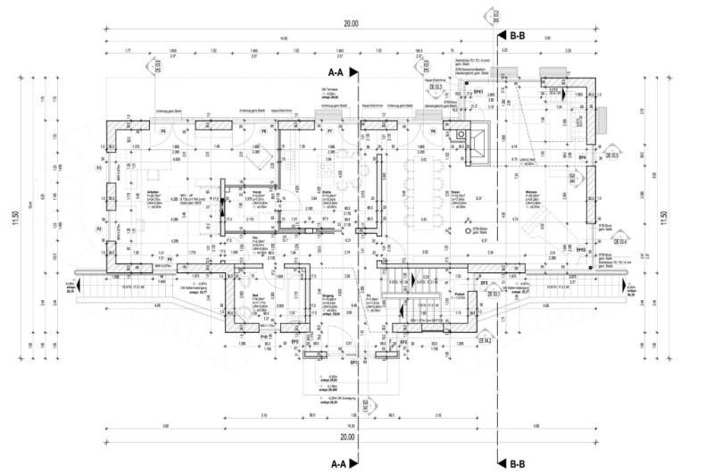
Das voll unterkellerte Einfamilienhaus ist in der Nähe des Universitäts-Klinikums als Generationen-Haus geplant.

 

Bei einem Auszug der Kinder kann - neben einem bereits vorhandenen Gäste-Appartement - mit wenigen baulichen Eingriffen ein 2-Familienhaus mit zusätzlicher Einliegerwohnung geschaffen werden.

 

Die Hochbauplanung und auch die Bauleitung des Ausbaus wurde vom Architekturbüro Zeug ausgeführt und begleitet.

 

Der erweiterte Rohbau sowie Planung und Bauleitung der Ver- und Entsorgungsmedien erfolgte seitens des Bauträgers.

Pläne

Beteiligte

Gewerk Firma
Statik HMK Ingenieure
Erweiterter Rohbau
Wohnpark GmbH
Ver- & Entsorgungsmedien Wohnpark GmbH
Tischler, Fenster Krüger
Trockenbau Krüger
Kamin Boden & Rislau Schornsteintechik GmbH
Treppenmöbel, Schlosser Schröder
Treppenmöbel, Tischler Krüger
Fliesen Albrecht
Malerarbeiten Pohfeld
Parkett Aquamadera
Außenanlagen, Pflasterungen Hinrichs

Lage